CMP Analisi Strutturale
Software per il calcolo, analisi e verifica strutture
Progettazione travi in c.a. con Namirial CMP
La procedura di progettazione delle travi in c.a. si svolge secondo modalità simili a quelle che si adottano operando manualmente.
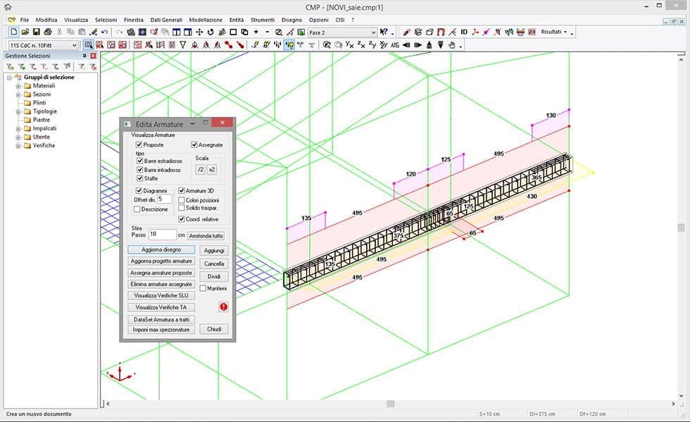
Una volta definita la geometria di tutte le sezioni, è possibile inserire le barre in corrispondenza dei bordi e le staffe in modo automatico, utilizzando il comando preparazione sezioni in c.a.:
Questo consente di ottenere un’armatura base, omogenea in tutte le sezioni ma completamente modificabile, da utilizzare come base di partenza per armare la sezione.
Il comando progetto travi in c.a. consente di eseguire il dimensionamento a flessione e taglio delle travi, in riferimento ad una specifica impostazione di verifica e nel rispetto dei controlli imposti dalla normativa.
Nella sezione Momento un diagramma statistico mostra in modo sintetico l’andamento delle sollecitazioni di flessione su tutte le aste cui è associata l’armatura corrente.
Ad ogni barra presente è associato un numero, indicativo della corrispondente posizione: 1 e -1, ad esempio, caratterizzano barre presenti su tutto lo sviluppo della trave, rispettivamente all’intradosso e all’estradosso della trave. Nel caso in cui l’armatura di partenza non garantisca un momento resistente superiore rispetto al momento sollecitante, è possibile integrarla, aggiungendo altre barre o modificando i diametri di quelle esistenti:
Ad ogni nuova barra viene inserita in posizione 0: finché non le viene assegnata una posizione differente, la barra rimane non strutturale e come tale non partecipa ad incrementare la resistenza della sezione.
Analogamente, anche nella progettazione a taglio si procede aggiungendo tratti di staffatura con passo più ravvicinato nei punti in cui la staffatura base risulti insufficiente:
La disposizione degli infittimenti (sia a momento che a taglio) di progetto viene eseguita cercando il soddisfacimento delle verifiche con l’utilizza del minimo quantitativo d’armatura. Nel caso il progettista decida di intervenire modificando le lunghezze dei tratti di infittimento, sulla base di criteri di uniformità o semplicità di posa, può farlo attraverso il comando edita armature:







